Romotop ESPERA 01 Keraamika keskküte

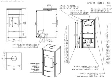
Suitsutoru ava läbimõõt:
150 mm
Kaal:
220 kg
Kõrgus:
1080 mm
Laius:
540 mm
Sügavus:
518 mm
Klaasi kuju:
Sirge
Köetav pind:
100 m2
Suitsugaaside temperatuur:
288 C°

Keraamika värvi valikud:

90002  90901  95508  31008  30301  92360 92360  61660  32804  36352  33600  63360
72785  75705  77900  67300  67678  68692  62404  42403  65501  83606  52808  50508
93608  51502  54505  58507  49000
Värvi näidised suuremalt (Keri avaneva lehe lõppu ja kliki huvipakkuva värvi näidisele)

Metalldetailide värv:
– must

Suitsutoru ühendus: Pealt
Miinimum tõmme: 12 Pa
Kasutegur: 80 %
Võimsus: 10 kW
Reguleeritav koguvõimsus: 3-9 kW
CO tase: 
0.0828%
Kütus: Puit

Veesoojendi võimsus nimivõimsuse korral 7 kW
Kuuma vee soojusvaheti võimsus 3,5-9 kW
Vee soojusvaheti võimsuse suhe: kuni 70% vesi ja 30% ruum
Veesoojendi maht 28 L
Kaminal on topelt klaas!
Malmist tuharest
Efektiivne järeljahuti kontuur koos termostaatventiiliga
Sisselaskeõhu kapillaarklamber takistab veemahuti ülekuumenemist
Välisõhuava (CAI): jah
Šamottkolle
Esmase- ja sekundaarseõhu reguleerimine ühe juhtkangi abil
Puude sahtel
DOUBLE SPIN suitsugaasi konvektsiooni süsteem

Tootja: Romotop (Tšehhi)

Garantii: 2 aastat (vastavalt garantii tingimustele)

Toode tellimisel ca 3-4 nädalat.
Tarneaeg 1-3 tööpäeva, kui toode on laos (Küsi saadavust)

Tootekood:
ESPERA 01

Keraamika värvi valikud

Kasutusjuhend Romotop valmiskaminadkamina paigaldus EST
Romotop ESPERA 01 keraamika mõõdud ja tehniline joonis
Romotop veeküte ESPERA Tehnilised andmed
Romotop ESPERA tehnilised andmed
Romotop ESPERA sertifikaat CPR
Romotop keraamika värvinäidised ENG_D

Vaata toodet tootja kodulehelt