Romotop HEAT 81.51.40.26 R/L ülestõstetava uksega Nurgaklaasiga tume sisu

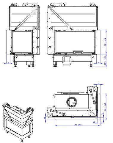
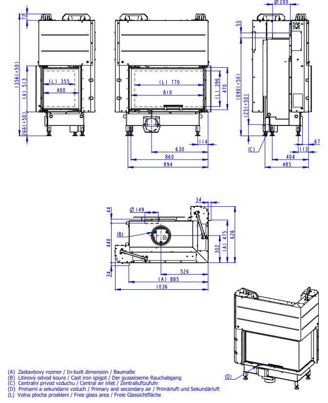
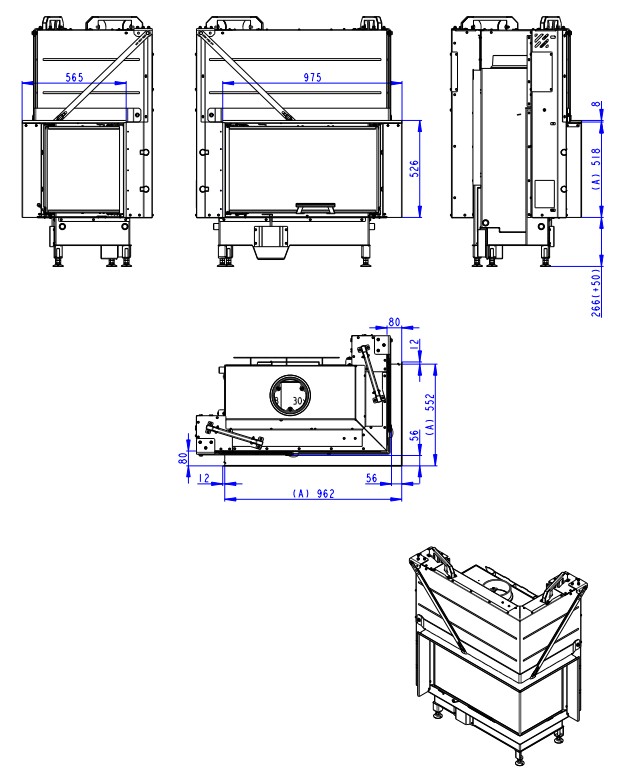
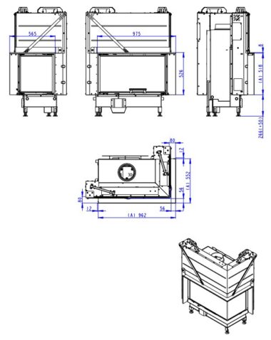
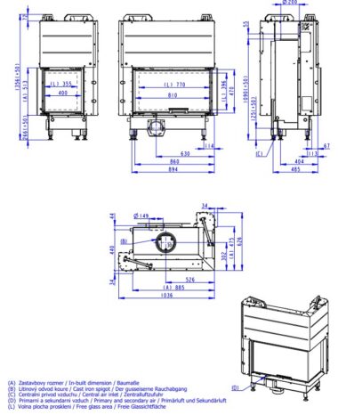
Suitsutoru ava läbimõõt:
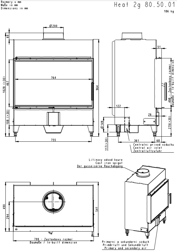
200 mm
Kaal:
271 kg
Kõrgus:
1357 mm
Laius:
1036 mm
Sügavus:
626 mm
Klaasi kuju:
2-klaasiga
Suitsugaaside temperatuur:
248 C°

Metalldetailide värv: must
Materjal: Teras

Suitsutoru ühendus: Pealt
Võimsus (min-maks): 6,0-15,6 kW
Miinimum tõmme: 12 Pa
Kasutegur: 83,2 %
Uks avaneb: küljele või üles
Keskmine puidu tarbimine: 3,4 kg/h
Kütus: Puit

Ukse kõrgus: 470 mm
Ukse laius: 810 mm
Ukse sügavus: 400mm

Peamised omadused ja eelised
Kaminasüdamik 81.51.40.25 HEAT ülestõstetava uksega parempoolse nurgaklaasiga:

  • Nurgaklaasi disain: Kaheosalised klaaspinnad annavad stiilse välimuse ja avara vaate tulele kogu ruumis.
  • SILENT LIFT süsteem: Uks liigub vaikselt, sujuvalt ja täpselt, muutes kasutamise lihtsaks ja mugavaks. Ülestõstetav uks on isesulguv!
  • Tulekolde materjalid: Kaminasüdamiku põlemiskamber on vooderdatud mustade šamott-tellistega. Soovi korral saab paigaldada tuharesti (lisavarustus).
  • Efektiivne põlemine: DOUBLE SPIN suitsugaaside süsteem suurendab kaminasüdamiku efektiivsust ja vähendab keskkonnamõju.
  • Puhas klaasitehnoloogia: Sekundaarse õhuvoolu süsteem hoiab klaaspinna tahmavaba, tagades alati selge ja häirimatu vaate tulele.
  • Reguleeritav õhuvool: Primaar- ja sekundaarse õhuvarustuse reguleerimine toimub ühe juhtnupu abil, pakkudes lihtsat ja intuitiivset kasutamist.
  • Välisõhu sisselaskesüsteem (EAI): Tagab piisava põlemisõhu, parandades põlemise efektiivsust ja õhukvaliteeti.
  • Tertsiaarõhu süsteem: Lisatud põlemiskambrisse, et maksimeerida põlemisprotsessi tõhusust.
  • Akumulatsioonivõimalus: MAMMOTH külgmised ja ülemised akumulatsioonikomplektid pikendavad soojuskiirguse aega rohkem kui 12 tunni võrra.
    Võimalik paigaldada maksimaalselt kaks (2) külje salvestus komplekti
  • Töörežiim: Konvektsiooniline küte, mis sobib ideaalselt erineva suurusega ruumidesse.
  • Lisavalikud: Võimalus kohandada tulekollet vastavalt kliendi eelistustele (rest või restita lahendus).

Romotop HEAT kaminasüdamik tõstetava ukse ja nurgaklaasiga on elegantne ja funktsionaalne lahendus, mis täiendab iga kodu hubasust ja tõhusust.

Võimalik lisada

Lisavarustus, mida on võimalik juurde tellida

  • REGULEERITAVAD JALAD – 190 mm
  • AIRBOX 02
  • KONVEKTSIOONI KATE (HL2LG KON 01)
  • KONVEKTSIOONI KATE (HR2LG KON 01)
  • RAAM HL3LG RAM11 raam standard
  • RAAM HL3LG RAM12 raam, standard
  • RAAM HL3LG RAM15 tugi
  • RAAM HR3LG RAM11 raam standard
  • RAAM HR3LG RAM12 raam standard
  • RAAM HR3LG RAM13 standard, universaalne
  • RAAM HR3LG RAM14 standard, universaalne
  • RAAM HR3LG RAM15 tugi
  • Tuharest komplekt (H3 ROST 01)
  • Tõste komplekt (paigaldajatele)
  • Küljele ROMOTOP MAMMOTH AKUMULATSIOONI KOMPLEKT kaminasüdamike jaoks (AKKUM KV 02)
  • Peale ROMOTOP MAMMOTH AKUMULATSIOONI KOMPLEKT 200 mm lõõriga kaminaküttele (AKKUM KV 04)

Vastab normidele: EN13229, Ecodesign, BImSchV2, CE

Tootja: Romotop (Tšehhi)

Garantii: 2 aastat (vastavalt garantii tingimustele)

Toode tellimisel ca 3-4 nädalat.
Tarneaeg 1-3 tööpäeva, kui toode on laos (Küsi saadavust)

Tootekood:
HR3LF-25 (parem)
HL3LF-25 (vasak)

NB! Antud mudel (HR3LF-25/HL3LF-25) on tootmisest maha võetud ning asendatud uuendatud versiooniga, millel on must Igniton sisu.
Tehnilised omadused on jäänud samaks.

Uus tellimiskood on:
HR3LF 26 Heat L, ülestõstetava uksega, 81.51.40, must igniton
HL3LF 26 Heat L, ülestõstetava uksega, 81.51.40, must igniton

*Vanem mudel tellis sisuga, uus mudel on igno sisuga.
*Võimalik tellida: soojustsalvestav komplekt ja kolde ava ehisraam.
*Mammoth soojussalvestava komplekti abil soojuskiirguse periood pikeneb enam kui 12 tunni võrra.
Küljele MAMMOTH soojasalvestav komplekt (AKKUM KV 02) maksimaalselt 2 külgakumulatsioonikomplekti.
Hind 1 külg: 201 €
Ülemine MAMMOTH soojasalvestav komplekt (AKKUM KV 04) suitsutoru D200-le
Hind: 293 €

Romotop üldine kasutusjuhend
Paigaldusjuhend Heat 81.51.40.26
Tehniline joonis Heat 81.51.40.26
Tehniline leht Heat 81.51.40.26
Tehnilised dokumendid ökodisain heat 81.51.40.26 (EL) 2015/1185
Tehnilised dokumendid energiamärgis Heat 81.51.40.26 (EL) 2015/1186
Toote infoleht ja energiamärgis Heat 81.51.40.26 vastavalt ELi määrusele 2015/1186
Toimivusdeklaratsioon Heat 81.51.40.26 CPR
Vastavusdeklaratsioon Heat 81.51.40.26
Romotop garantiileht

Vaata toodet tootja kodulehelt