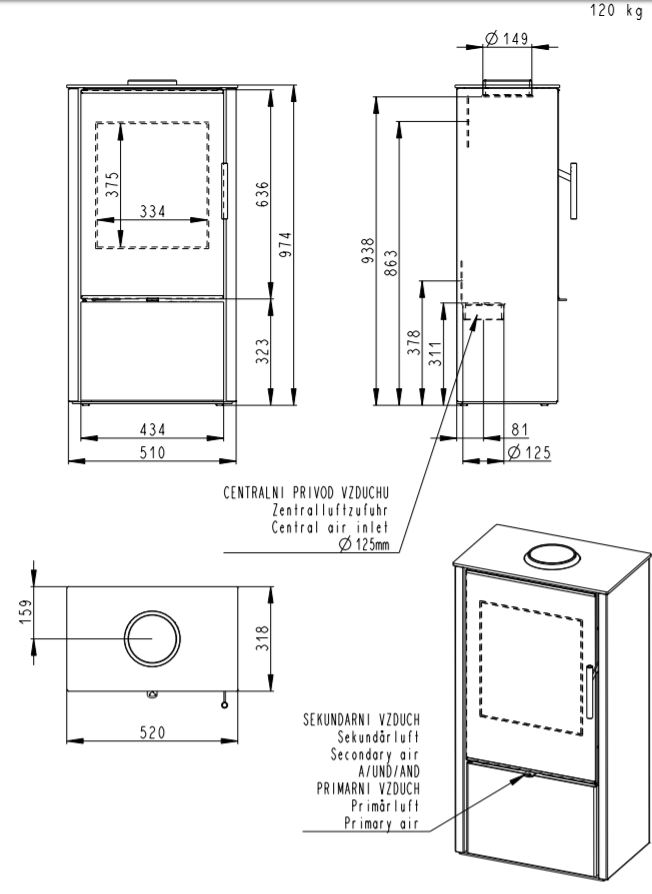
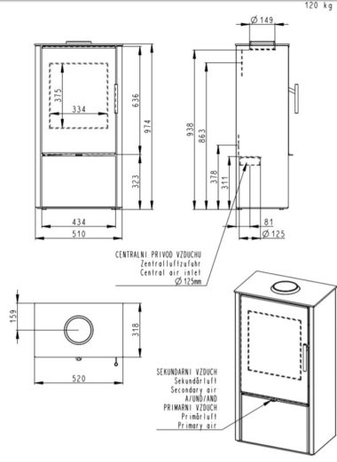
Romotop Laredo F03 metall

Suitsutoru ava läbimõõt:
150 mm
Kaal:
120 kg
Kõrgus:
974 mm
Laius:
520 mm
Sügavus:
318 mm
Klaasi kuju:
Sirge
Köetav pind:
64 m2
Suitsugaaside temperatuur:
247 C°

Metalldetailide värv: must

Sobib passiivmajja

Võimsus: 4 kW
Võimsus: 2–6,5 kW
Suitsutoru ühendus: Pealt, Tagant
Miinimum tõmme: 12 Pa
Kasutegur: 80,5 %
CO tase: 0,0954 %
Keskmine puidu tarbimine: 1,2 kg/h
Klaasi kuju: Sirge
Uks avaneb: Küljele
Kütus: Puu

Sekundaarneõhk hoiab klaasi puhtana
Klaas – BlackLine
Puudesahtel uksega

Tootja: Romotop (Tšehhi)

Garantii: 2 aastat (vastavalt garantii tingimustele)

Toode tellimisel ca 3-4 nädalat.
Tarneaeg 1-3 tööpäeva, kui toode on laos (Küsi saadavust)

Tootekood:
LAREDO F 03

Kasutusjuhend Romotop valmiskaminad EST
Romotop Laredo F03metall mõõdud ja tehniline joonis
Romotop Laredo F sertifikaat CPR

Vaata toodet tootja kodulehelt