Romotop HEAT 4G S 70.44.33.24 klaas kahest tükist hele sisu

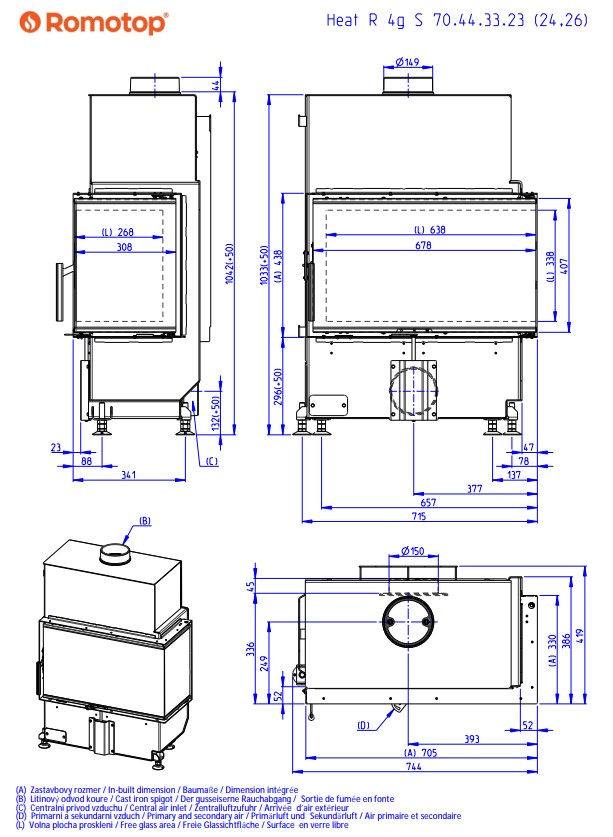
Suitsutoru ava läbimõõt:
150 mm
Kaal:
128 kg
Kõrgus:
1086 mm
Laius:
744 mm
Sügavus:
419 mm
Klaasi kuju:
2-klaasiga

HEAT nurgakaminasüdamikud küljele avanevate osadega on sobiv igassee interjööri.
See mudel sobib ideaalselt ka madala energiatarbega hoonetesse.

Metalldetailide värv: must

Sobib passiivmajja
Suitsutoru ühendus: Pealt
Võimsus: 4,5–11,7 kW
Miinimum tõmme: 12 Pa
Kasutegur: 80 %
Kütus: Puit
Keskmine puidu tarbimine: 2,7 kg/h

Ukse kõrgus: 470 mm
Ukse laius: 678 mm
Ukse sügavus: 308 mm

Omadused:

Tõhus põlemissüsteem
Vastupidav IGNITON vooder
Innovaatiivne DOUBLE SPIN suitsugaaside juhtimissüsteem
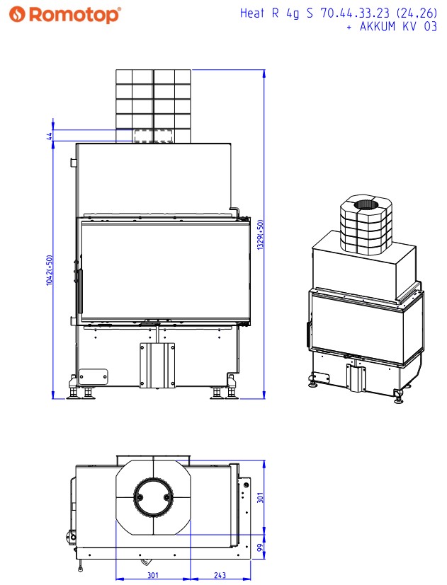
Võimalus lisada kuni kaks MAMMOTH akumulatsiooniplokki.

Võimalik lisada:

AIRBOX 01 tellimuskood: I2 AIRBOX 01
Disainkäepide tellimuskood: D3 MADLO 01L
Tagaukse disainkäepide, mis on sama stiili kui esikäepide (vasakule avanev). Saadaval lisavarustusena.
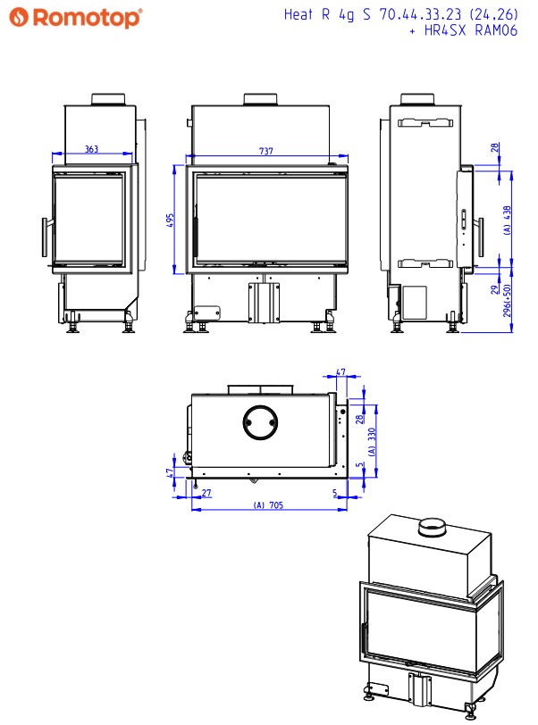
Raam universaal, tellimiskood: HR4SX RAM04
Raam universaal, tellimuskod: HR4SX RAM06
Süvistatud käepide, tellimuskood: D3 MADLO 01
Võimalus osta ainult ülemist või külgmist MAMMOTH akumulatsiooni

Küljele MAMMOTH soojasalvestava komplekt, tellimuskood: AKKUM KV 02 (kaal 46 kg)
Peale MAMMOTH soojasalvestava komplekt suitsutoru D150-le, tellimiskood: AKKUM KV 03 (kaal 70 kg)

HEAT kaminasüdamikud on mõeldud nii konvektsiooni- kui ka akumuleerimisfunktsiooniga töötamiseks ventilatsioonirestide abil.
Nurkklaasid (vasakul, paremal) on valmistatud kahest osast.
Ukseraam on valmistatud spetsiaalsest jäigast valtsprofiilist.
Uste klaasil on disaintrükk.
Komplektis on 
EAI (välise õhu sissevõtu) süsteem.
Põlemiskamber on vooderdatud spetsiaalse vastupidava materjaliga nimega IGNITON, mis on saadaval valge või musta värvi, vastavalt kliendi eelistustele.
Teisese õhu sissevõtt uhub ukse klaasi üle, et vältida sette kogunemist.
Primaarset ja teisest õhu sissevõttu reguleerib 
üks juhtelement .
Kaminasüdamikele saab eraldi osta 
MAMMOTH külgmise akumulatsioonikomplekti ja ülemisi akumulatsioonirõngaid, mis pikendavad soojuskiirguse perioodi enam kui 12 tunni võrra.
Innovatiivne 
DOUBLE SPIN suitsugaaside süsteem suurendab efektiivsust ja vähendab kaminasüdamiku keskkonnamõju.

Vastab normidele: 15a B–VG, Din +, BimschV 2

Tootja: Romotop (Tšehhi)

Garantii: 2 aastat (vastavalt garantii tingimustele)

Toode tellimisel ca 3-4 nädalat.
Tarneaeg 1-3 tööpäeva, kui toode on laos (Küsi saadavust)

Tootekood:
HR4SX 24 parem
HL4SX 24 vasak

*Südamik on saadaval parema või vasaku nurgaklaasiga.
parem – HEAT R 4G S 70.44.33.24 – kood: HR4SX 24
vasak – HEAT L 4G S 70.44.33.24 – kood: HL4SX 24

*Võimalik tellida: soojustsalvestav komplekt ja kolde ava ehisraam.
Küljele lühike MAMMOTH soojasalvestav komplekt.
Hind (1 külg): 201 €
Ülemine MAMMOTH soojasalvestava komplekt suitsutoru D150-le.
Hind: 302 €

Romotop üldjuhised
Romotop Heat 70.44.33.24 Paigaldusjuhend
Romotop Heat 70.44.33.24 Tehniline leht
Romotop Heat 70.44.33.24 Joonis
Romotop Heat 70.44.33.24 Tehnilised dokumendid ökodisain (EL) 2015/1185
Romotop Heat 70.44.33.24 Tehnilised dokumendid energiamärgis (EL) 2015/1186
Romotop Heat 70.44.33.24 Toote infoleht energiamärgis EL
Romotop Heat 70.44.33.24 Omaduste deklaratsioon CPR
Romotop Heat 70.44.33.24 Vastavusdeklaratsioon
Romotop Garantii sertifikaat 2017 EE
Romotop garantiileht

Vaata toodet tootja kodulehelt