Romotop Heat 80.50.04 hele sisu

Suitsutoru ava läbimõõt:
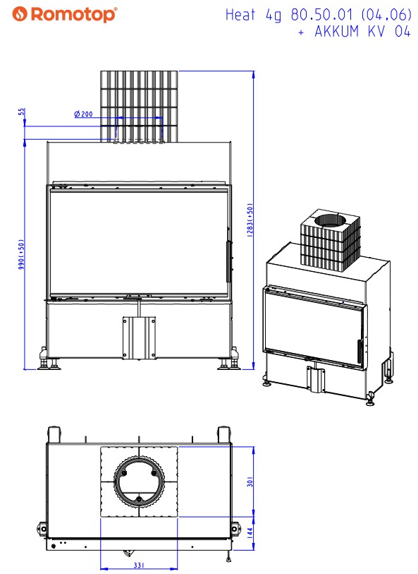
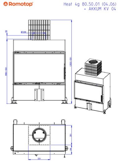
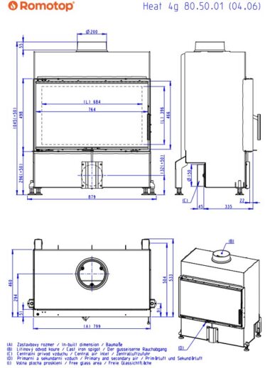
200 mm
Kaal:
184 kg
Kõrgus:
1045 mm
Laius:
879 mm
Sügavus:
533 mm
Klaasi kuju:
Sirge

Metalldetailide värv: must
Materjal: Teras

Suitsutoru ühendus: Pealt
Võimsus (min-maks): 5,6-14,4 kW
Miinimum tõmme: 12 Pa
Kasutegur: 81 %
Uks avaneb: küljele
Kütus: Puit

Ukse kõrgus: 466 mm
Ukse laius: 764 mm

Romotop HEAT 4G kaminasüdamik on sirge klaasiga ja küljele avaneva uksega mudel, mis ühendab endas modernse disaini ja energiatõhusa kütmise.
Tänu puhtale geomeetriale ja täpselt viimistletud detailidele sobib see suurepäraselt nii kaasaegsetesse kui klassikalistesse interjööridesse.
Kaminasüdamiku uks avaneb küljele ning selle tugev raam on valmistatud spetsiaalsest rullprofiilist.
Ukseklaas on varustatud disaintrükiga, mis annab visuaalse elegantsi ning peidab tehnilised detailid.

Põlemisefektiivsus ja kasutusmugavus
Sekundaarne õhuvool suunatakse klaasile, aidates hoida selle puhtana.
Põlemise juhtimine on lihtne – primaar- ja sekundaarõhk reguleeritakse ühe hoova abil, mis muudab kütmise intuitiivseks ja sujuvaks.
Tänu välisõhu sisselaske (EAI) süsteemile on see mudel sobiv ka madala energiatarbega hoonetesse, säilitades samal ajal sisekliima tasakaalu.
Põlemiskambri vooder on valmistatud vastupidavast IGNITON materjalist, mis tagab hea soojapidavuse ja on saadaval kas heleda või tumeda sisuga.
Malmist rest ja tuhakast muudavad hoolduse lihtsaks ja kasutajamugavaks.
Tänu Romotop DOUBLE SPIN suitsugaasisüsteemile saavutab kaminasüdamik suurema kasuteguri ja puhtama põlemise – see on tõhus ning samal ajal keskkonnasõbralik lahendus.
Akumulatsioon – soojus, mis kestab
Soovi korral saab lisada ROMOTOP MAMMOTH akumulatsioonikomplektid, mis salvestavad soojust ja kiirgavad seda tagasi ruumi kuni 12 tundi pärast kütmise lõppu.
Akumulatsiooniplokke saab paigaldada nii kaminasüdamiku külgedele kui ka peale – maksimaalselt kaks külgmist komplekti.

Omadused ja eelised:

  • Sirge ja külje peale avanev uks tugeva raamiga
  • Disainklaas – visuaalselt puhas ja stiilne
  • IGNITON koldesisu – vastupidav ja soojapidav
  • Puhas klaasitehnoloogia: Sekundaarse õhuvoolu süsteem, mis hoiab klaasi puhtana
  • Välisõhu sisselaskesüsteem (EAI): Tagab piisava põlemisõhu, parandades põlemise efektiivsust ja õhukvaliteeti
  • Efektiivne põlemine: DOUBLE SPIN suitsugaasisüsteem suurendab kaminasüdamiku efektiivsust ja vähendab keskkonnamõju
  • Reguleeritav õhuvool: Primaar- ja sekundaarse õhuvarustuse reguleerimine toimub ühe juhtkangi abil, pakkudes lihtsat ja intuitiivset kasutamist
  • Töörežiim: Konvektsiooniline küte, mis sobib ideaalselt erineva suurusega ruumidesse.
  • Akumulatsioonivõimalus: MAMMOTH külgmised ja ülemised akumulatsioonikomplektid pikendavad soojuskiirguse aega rohkem kui 12 tunni võrra

Võimalik lisada

  • Reguleeritavad jalad: 100 mm / 190 mm
  • AIRBOX 02
  • Disainkäepide (tagauks, paremale avanev)
  • Raamid: sügav (RAM04) ja standard (RAM06)
  • Käepidemete valik (eemaldatav, süvistatav)
  • MAMMOTH külgmine akumulatsioonikomplekt (AKKUM KV 02)
  • MAMMOTH ülemine akumulatsioonikomplekt suitsutoru Ø200 mm (AKKUM KV 04)

Vastab normidele: EN13229, Ecodesign, BImSchV2, CE

Tootja: Romotop (Tšehhi)

Garantii: 2 aastat (vastavalt garantii tingimustele)

Toode tellimisel ca 3-4 nädalat.
Tarneaeg 1-3 tööpäeva, kui toode on laos (Küsi saadavust)

Tootekood:
H4X-04

*Võimalik tellida: soojustsalvestav komplekt ja kolde ava ehisraam.
*Mammoth soojussalvestava komplekti abil soojuskiirguse periood pikeneb enam kui 12 tunni võrra.
Küljele MAMMOTH soojasalvestav komplekt (AKKUM KV 02) maksimaalselt 2 külgakumulatsioonikomplekti.
Hind 1 külg: 201 €
Ülemine MAMMOTH soojasalvestav komplekt (AKKUM KV 04) suitsutoru D200-le
Hind: 293 €

Romotop üldine kasutusjuhend
Paigaldusjuhend heat 4G 80.50.04
Tehniline joonis Heat 80.50.04
Tehniline leht Heat 80.50.04
Tehnilised dokumendid ökodisain Heat 80.50.04 (EL) 2015/1185
Tehnilised dokumendid energiamärgis Heat 80.50.04 (EL) 2015/1186
Toote infoleht energiamärgis Heat 80.50.04 vastavalt ELi määrusele 2015/1186
Toimivusdeklaratsioon Heat 80.50.04 CPR POV
Vastavusdeklaratsioon Heat 80.50.04
Romotop garantiileht

Vaata toodet tootja kodulehelt