Romotop Cara CS N 03 metall ülestõstetava uksega Slim

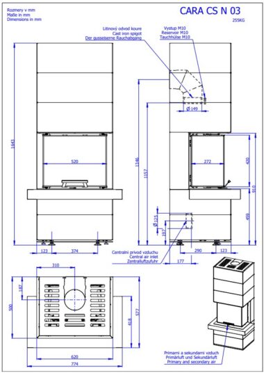
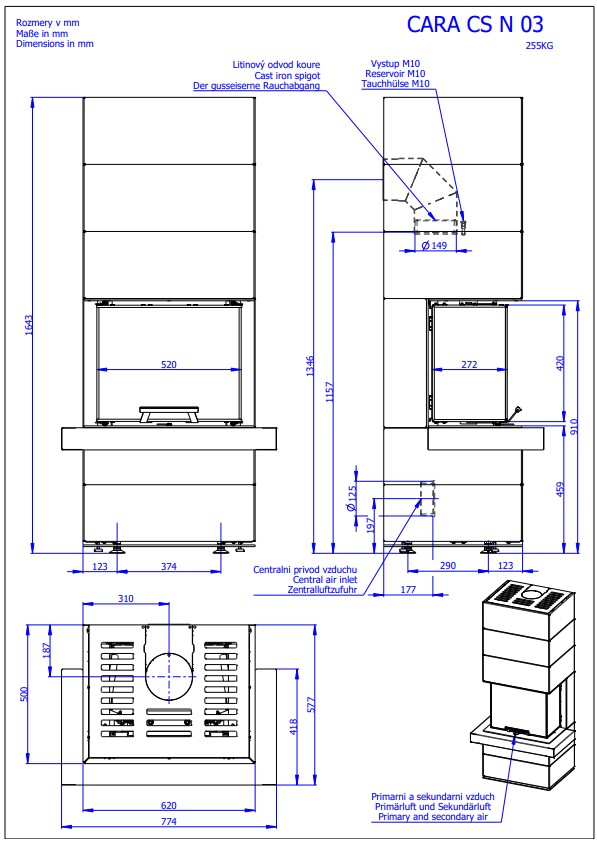
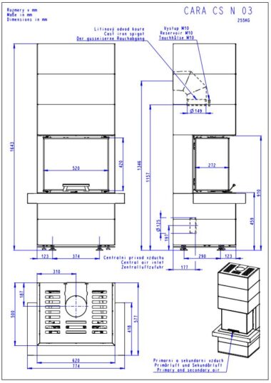
Suitsutoru ava läbimõõt:
150 mm
Kaal:
238 kg
Kõrgus:
1643 mm
Laius:
774 mm
Sügavus:
577 mm
Klaasi kuju:
3-klaasiga

CARA CS N 03 täiuslik minimalistlik akumuleeriv kamin, mis loodud kaasaegse tehnoloogia ja vajadusi arvestades.
Ideaalselt tasakaalustatud välisproportsioonid, suured lakitud metallplekid ja suured kolmepoolsed klaasid loovad kamina, mis on suunatud kõige nõudlikumatele klientidele.

Metalldetailide värv: must
Väliskate: metall
Energiaklass: A+

Sobib passiivmajja
Võimsus: 2,9-7,4 kW
Suitsutoru ava diameeter: 150 mm
Suitsutoru ühendus: Pealt, Tagant
Suitsutoru ühenduse kõrgus: 1346 mm
Miinimum tõmme: 12 Pa
Kasutegur: 82 %
Keskmine puidu tarbimine: 1,6 kg/h
Klaasi kuju: 3-klaasiga
Uks avaneb: Küljele, Ülesse
Ukse kõrgus: 420 mm
Ukse laius: 520 mm
Ukse sügavus: 272 mm
Kütus: Puu

Ülestõstetav uks koos “Silent Lift” süsteemiga.
Tänu uue rullikute süsteemile liigub uks väga vaikselt ja kergelt
Uks sulgub täpselt tänu rullikutele
Ülestõstetav uks on isesulguv

Ülestõstetava ukse avamine ja sulgemine on väga täpne, vaikne ja kerge, tänu uuele rullikute süsteemile SILENT LIFT.
Tagumine isolatsioon võimaldab kamina asetada otse seina äärde.
Komplekti kuulub CAI (välise õhu sisselaskeava) süsteem.
Uuenduslik DOUBLE SPIN suitsugaaside süsteem suurendab kamina efektiivsust.
Kaminat võib ühendada suitsutoruga pealt või tagant.
Tänu sekundaarsele õhu sisselaskeavale hoiab “air-wash“ klaasipuhastussüsteem ukseklaasi puhtana.
Kaminakolle on vooderdatud kvaliteetsete šamotti plaatidega.
Standardvarustuses ei kuulu rest, kuid seda saab soovi korral lisada.
Kamin on ühendatud tertsiaarse õhu sisselaskeavaga.
Primaarse ja sekundaarse õhu sisselaskeavaid reguleeritakse ainult ühe juhtkangi abil.
Lisaks saate lisada täiendavaid akumuleerivaid elemente, mis kiirgavad soojust kaua pärast kamina kustumist.

Kamina CARA CS N 03 eelised:

Ülestõstetav uks koos “Silent Lift” süsteemiga
Uks sulgub väga vaikselt, täpselt ja kergelt
Ülestõstetav uks on isesulguv
Täiendav isolatsiooni lubab kamina paigaldada seinale väga lähedale
CAI (välisõhuava) süsteem.
DOUBLE SPIN süsteem suurendab efektiivsust
Kamina ühendus pealt või tagant.
Puhas klaas tänu “air-wash“ klaasipuhastussüsteemile.
Kvaliteetne šamottkolle.
Kolle on ilma tuharestita, võimalik tellida lisana
Tertsiaarne õhu sisselaskeava.
Õhu reguleerimine ainult ühe kangi abil.
Kaminale on võimalik lisada soojussalvestus komplekti.
Moderne metalne väliskate
“Slim” ruumisäästlik disain
Kaminale on võimalik lisada soojussalvestus komplekti.
Tellimiskood: AKKUM CARA 02
Akumulatsioonielementide komplekti kaal 66 kg
Akumulatsioonielemendid lisa tasu eest.

Võimalik lisada

  • Akumulatsioonielementide komplekt CARA CS
    Tellimiskood: AKKUM CARA 02
  • AIRBOX 01 – hõlbustab välisõhu sisselaskeava (EAI) ühendamist altpoolt.
    Tellimuse kood: H2 ÕHUKAST 01
  • Kaitseklaas põrandale.
    Tellimiskood: SKLO 4210
  • Tuharest CARA.
    Tellimiskood: CARA ROST 01

Vastab normidele EN 13 240, 15a B–VG, Din +, BimschV 2

Tootja: Romotop (Tšehhi)

Garantii: 2 aastat (vastavalt garantii tingimustele)

Toode tellimisel ca 3-4 nädalat.
Tarneaeg 1-3 tööpäeva, kui toode on laos (Küsi saadavust)

Tootekood:
CARA CS N 03

*Soojuse salvestusaeg kuni 5 h
*Kaminat on võimalik tellida koos soojust salvestava komplektiga.
Hind koos soojussalvestuskomplektiga: 4618 €

Romotop üldjuhised
Kasutusjuhend Romotop valmiskaminad EST
Kasutusjuhend Romotop valmiskaminad kamina paigaldus EST
Romotop Cara CS N 03 Paigaldusjuhend
Romotop Cara CS N 03 Tehniline leht
Romotop Cara CS N 03 Joonis
Romotop Cara CS N 03 Tehnilised dokumendid ökodisain (EL) 2015/1185
Romotop Cara CS N 03 Tehnilised dokumendid energiamärgis (EL) 2015/1186
Romotop Cara CS N 03 Toote infoleht energiamärgis EL
Romotop Cara CS N 03 Omaduste deklaratsioon CPR
Romotop Cara CS N 03 Vastavusdeklaratsioon
Romotop Garantii sertifikaat 2017 EE
Romotop garantiileht

Vaata toodet tootja kodulehelt