Romotop Alea 02 looduskivi

Suitsutoru ava läbimõõt:
150 mm
Kaal:
165 kg
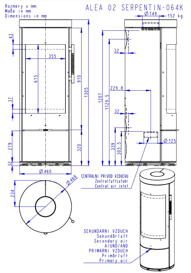
Kõrgus:
1305 mm
Laius:
468 mm
Sügavus:
468 mm
Klaasi kuju:
Panoraam
Köetav pind:
58,4 m2
Suitsugaaside temperatuur:
235 C°

ALEA 02 kamin on loodud pakkuma tõhusat küttelahendust.
Pöörlev põlemiskamber võimaldab tulele vaadet erinevatest nurkadest.
Selle õhuke ja elegantne vorm sobib suurepäraselt igasse interjööri, pakkudes samas tõhusat soojust.
See muudab ALEA ideaalseks valikuks energiasäästlike ja kaasaegsete kodude jaoks.

Metalldetailide värv: must
Ülemine plaat: kivi

Kamin ALEA 02 Tehnilised andmed:

Võimsus: 5 kW
Võimsus: 2,9-7,4 kW
Suitsutoru ühendus: Pealt, Tagant
Tagumise suitsutoru väljalaske kõrgus: 1129,5mm
Miinimum tõmme: 12 Pa
Kasutegur: 81 %
CO tase: 0,0684 %
Keskmine puidu tarbimine: 1,6 kg/h
Klaasi kuju: Panoraam
Uks avaneb: Küljele
Kütus: Puu

Peamised kamin ALEA 02 omadused:

  • 90-kraadine pöörlev põlemiskamber – võimaldab tulele vaadet erinevatest nurkadest.
  • Sobib madala energiatarbega kodudesse – ideaalne energiatõhusate ja hästi isoleeritud hoonete jaoks.
  • EAI (Välisõhu sisselaskesüsteem) – tagab optimaalse põlemise ja hoiab ruumi õhu kvaliteedi värskena.
  • Ventileeritud disainkäepide – mugav ja ohutu kasutada ka kütmise ajal.
  • Ukse lukustamine avatud asendisse – lihtsustab kütmist ja hooldust.
  • Puhas klaasi süsteem – sekundaarõhuvool hoiab ukseklaasi tahmavaba, tagades alati selge vaate leekidele.
  • Šamottvooderdus põlemiskambris – parandab põlemisefektiivsust ja suurendab kamina vastupidavust.
  • Paindlik suitsugaasi ühendus – suitsutoru ühendamise võimalus nii ülevalt kui ka tagant.
  • Lihtne õhukontroll – primaar- ja sekundaarõhu juhtimine ühe juhtimismehhanismiga.

Vastab normidele: EN 13 240, 15a B–VG, Din +, BimschV 2, Ecodesign

Tootja Romotop (Tšehhi)

Garantii: 2 aastat (vastavalt garantii tingimustele)

Toode tellimisel ca 3-4 nädalat.
Tarneaeg 1-3 tööpäeva, kui toode on laos (Küsi saadavust)

Tootekood:
ALEA-02

Romotop üldjuhised
Kasutusjuhend Romotop valmiskaminad EST
Kasutusjuhend Romotop valmiskaminad kamina paigaldus EST
Romotop Alea 02 Paigaldusjuhend
Romotop Alea 02 Tehniline leht
Romotop Alea 02 Joonis
Romotop Alea 02 Tehnilised dokumendid ökodisain (EL) 2015/1185
Romotop Alea 02 Tehnilised dokumendid energiamärgis (EL) 2015/1186
Romotop Alea 02 Toote infoleht energiamärgis EL 2015/1186
Romotop Alea 02 Omaduste deklaratsioon CPR
Romotop Alea 02 Vastavusdeklaratsioon
Romotop Garantii sertifikaat 2017 EE
Romotop garantiileht

Vaata toodet tootja kodulehelt