ALEA A 01 kamin on stiilne ja funktsionaalne kütteseade, mis kohandub sinu vajadustega.
Pöörlev põlemiskamber võimaldab tulele vaadet erinevatest nurkadest.
Soojussalvestussüsteem tagab pikemaajalise soojuskiirguse ka pärast tule kustumist.
See muudab ALEA A ideaalseks valikuks energiasäästlike ja kaasaegsete kodude jaoks.
Metalldetailide värv: must
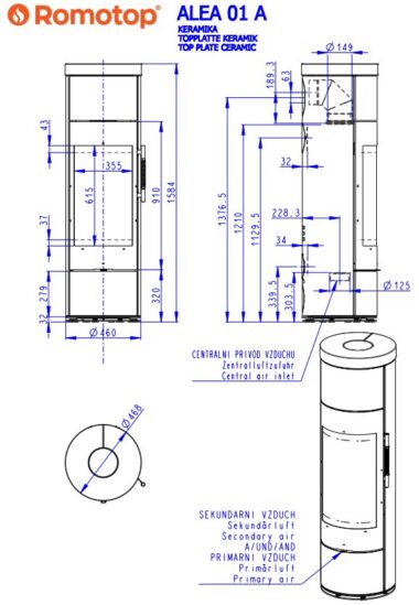
Kamin ALEA A 01 Tehnilised andmed:
Võimsus: 5 kW
Võimsus: 2,9-7,4 kW
Suitsutoru ühendus: Pealt, Tagant
Tagumise suitsutoru väljalaske kõrgus: 1129,5 / 1376,5 mm
Miinimum tõmme: 12 Pa
Kasutegur: 81 %
CO tase: 0,0684 %
Keskmine puidu tarbimine: 1,6 kg/h
Klaasi kuju: Panoraam
Uks avaneb: Küljele
Kütus: Puu
Ülemine plaat: keraamiline, lai värvi valik
Lisavarustus:
Akumulatsioonielementide komplekt AKKUM 02
Salvestusaeg kuni 4 tundi. Kaal 30 kg

Peamised kamin ALEA A 01 omadused:
- 90-kraadine pöörlev põlemiskamber – võimaldab tulele vaadet erinevatest nurkadest.
- Soojusakumulatsioonisüsteem – põlemiskambri kohal asuvad soojussalvestuselemendid pikendavad soojuskiirgust kuni 4 tundi.
- Sobib madala energiatarbega kodudesse – ideaalne energiatõhusate ja hästi isoleeritud hoonete jaoks.
- EAI (Välisõhu sisselaskesüsteem) – tagab optimaalse põlemise ja hoiab ruumi õhu kvaliteedi värskena.
- Ventileeritud disainkäepide – mugav ja ohutu kasutada ka kütmise ajal.
- Ukse lukustamine avatud asendisse – lihtsustab kütmist ja hooldust.
- Puhas klaasi süsteem – sekundaarõhuvool hoiab ukseklaasi tahmavaba, tagades alati selge vaate leekidele.
- Šamottvooderdus põlemiskambris – parandab põlemisefektiivsust ja suurendab kamina vastupidavust.
- Paindlik suitsugaasi ühendus – suitsutoru ühendamise võimalus nii ülevalt kui ka tagant.
- Lihtne õhukontroll – primaar- ja sekundaarõhu juhtimine ühe juhtimismehhanismiga.
- Lisavarustus: soojusakumulatsioonikomplekt (AKKUM 02) – pikendab kamina soojuskiirguse aega kuni 4 tunnini.
Vastab normidele: EN 13 240, 15a B–VG, Din +, BimschV 2
Tootja Romotop (Tšehhi)
Garantii: 2 aastat (vastavalt garantii tingimustele)
Toode tellimisel ca 3-4 nädalat.
Tarneaeg 1-3 tööpäeva, kui toode on laos (Küsi saadavust)